Often I have little small projects that come up. Little projects that pay by the hour and don’t take much coordination on the meeting end of things – but more time on following the design through and getting all the product ordered and to the site. Currently one of these projects is for a small lobby of a building that we did a remodel on. We weren’t originally contracted to do the FF&E and most of the finishes were selected to match the existing building – not giving a lot of design creativity. After the building was finished and the users took over the building fully again, the client moved in some furniture – randomly and without much order or balance.
I received a call and was ask to help out with a quick furniture selection for the space.
Building up to today I had emailed out some furniture and furniture plan options that an intern and I worked on.
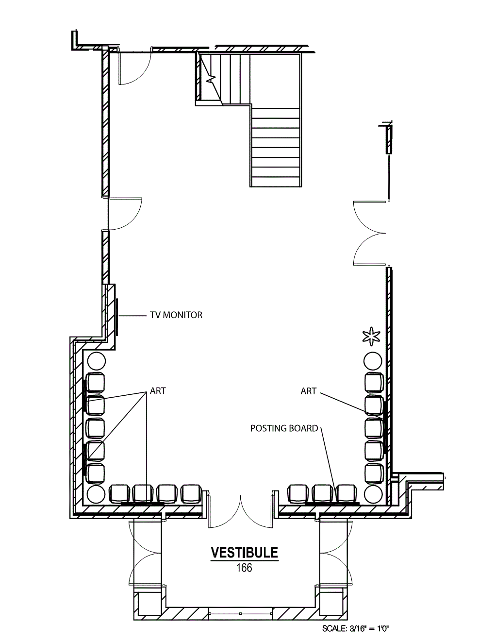
After sending these out, I received some preliminary feedback that the client wanted to not have “perimeter-itis” furniture plan. What is perimeter-itis” you ask?
As you can see – this means having furniture around the room’s perimeter. Not being one that usually likes getting -itis,’ I had to communicate with the team why I had chosen to include this as an option.
Research. I went to the lobby and watched how it was used. There was traffic patterns coming from literally 5 different hall/walk ways. It was a very busy lobby, without a lot of stopping to “smell the roses.” I felt that this lobby was more of a “perching” lobby, not for general kick back and relaxing. If there was some sitting down, it was only to wait for someone or look through their personal effects to find a needed item. This high traffic would also make it hard to have a floor rug – something I would normally suggest in a space like this. After hearing my explanation, the Owner agreed, yet requested we meet in the middle with one of submitted floor plan options:
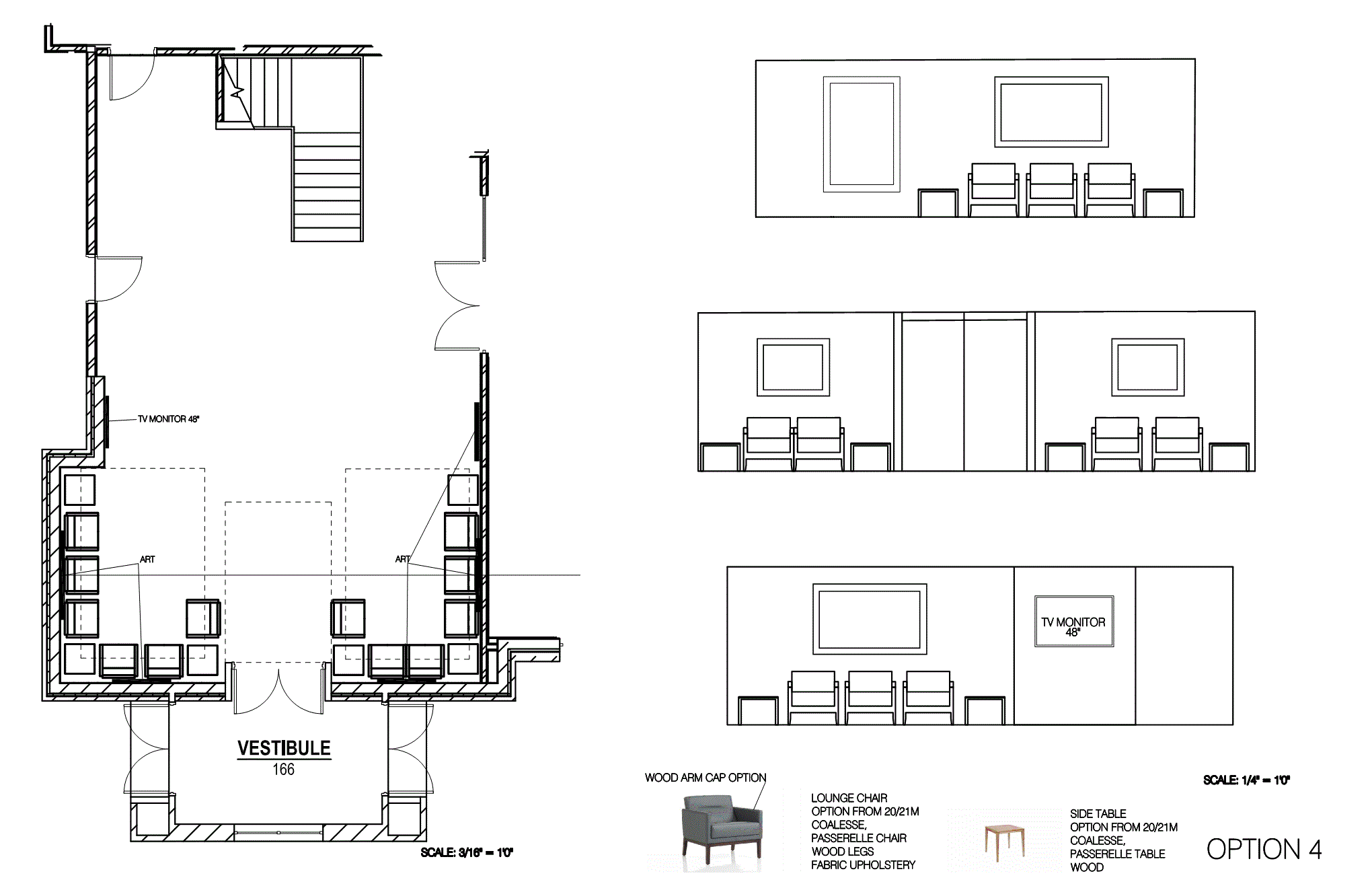
Next step was getting the upholstery and wood finishes approved, and art work selected. Today I took a small portion of the morning to get everything pulled together and prepared to meet with the Client. This included selecting fabrics that were currently running-line fabrics (I am always surprised at how many times I call on a fabric that seems to be perfect, only to find out it has been discontinued). He showed up at 10 A.M. and within 30 minutes we were done discussing this project and on to something else we are working on together.



For the next couple hours after he left, I was on the phone and emailing all the different suppliers requesting quotes and getting lead times for the products and fabrics. As I waited for responses, I made a record of the meeting – meeting minutes – and sent them out to all the interested parties for record of the direction given. As I wait for any possible responses from the team, I will start to get the Purchase Order (PO) moving with our agent in the office that generates these.
To date, it has taken about 40 hours to get to this point. I am estimating about another 25, to generate the PO with all the communication and double checking around it. Those last 25 – 30 hours also include order tracking, follow up and then installation; a lot for just “ordering some furniture”.






Leave a comment