When Brigham Young University closed their Interior Design Program 14 years ago, it limited the options and paved the way for other local universities programs to gain more support. And then with the closing of Brigham Young University – Idaho’s program this past year, Utah and Idaho have been left with only two CIDA accredited programs: Utah State University and Weber State University, though LDS Business College has a strong associates program.
Today, I spent the morning with one of those great programs: Weber State. I was asked to present to the general lecture class for the Interior Design students about this blog and what I do as a commercial designer. One of the items we talked about was the process of design and fabrication for a custom furniture. I used a specific chair that is going to a renovation project as our lesson manual. Custom furniture was a must on this project since we can no longer order historically appropriate furniture “off the shelf.”
This was an antique photo we started with for our High Gothic Revival piece:
This was a concept sketch of how we would modify it:
Next we rendered it with the upholstery, etc. for buy off from the Owner. This is the frontal view for an arm version of the chair. . (The Crown detail on the top had been modified from the sketches.)
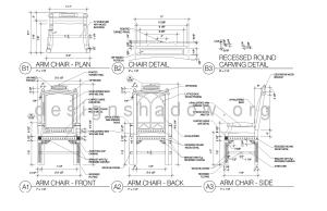
Once the concepts were approved we did drawings for the chair and sent them out to be built and a mock up chair was made:
We had a number of furniture makers bid the chair. Once a manufacturer was selected and approvals were given from the Owner, the chair was put into production. Below are some parts and pieces of the process:
Here is a chair being “dry fit;” making sure all the parts fit before starting the full production of putting all the pieces together.
Today, this chair is in storage with its 162 “siblings” waiting for installation.
For the presentation today I brought the chair for the class to see the final product.
I was grateful for the time today at Weber State. They are a strong program and have a facility that is top of the line!













Leave a comment