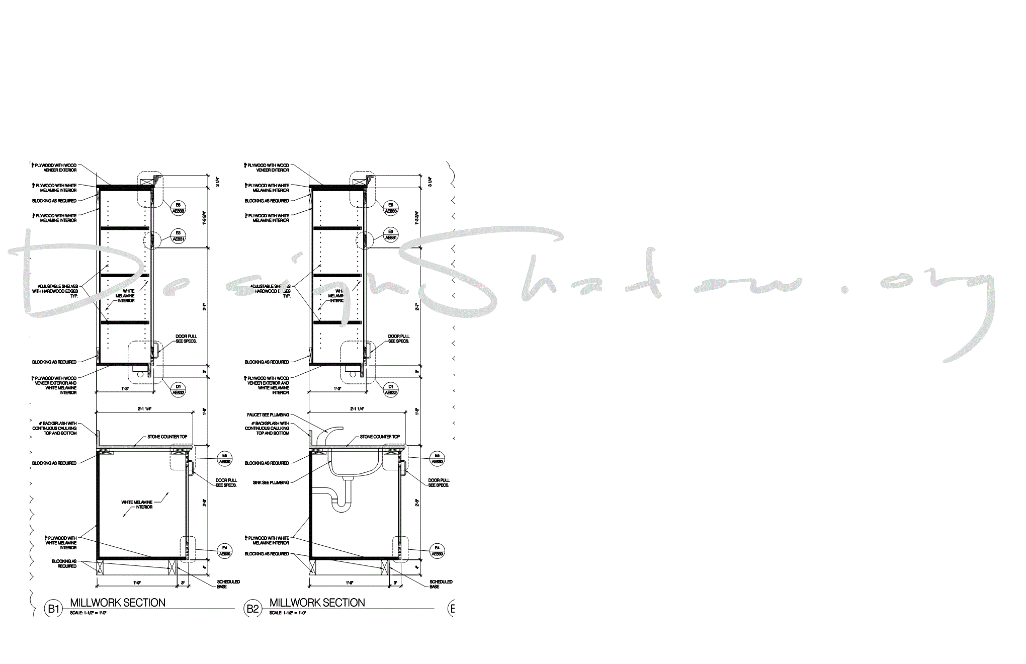
Today I worked on redlining a portion of the 200 + pages of mill-work/casework shop drawings (it will actually take a couple days to make it through them.) Shop drawings come to us after a contractor has selected the sub-contractor that will be doing the woodwork/mill-work the job. They take our drawings and specifications and then interpret in drawing form to show us how they will be built, etc. Since I am one of the team members that was involved with creating the designs and putting drawings together for this scope of work, it is my responsibility to make sure this sub – contractor’s drawings are not just meeting our design intent but are accurate in dimension, scale and materiality. The last one is really important. Sometimes – whether by intent or mistake, materials can get switched, like if we call for painted wood, but they have bid naturally stained wood. These mix ups can cause large cost changes down the road. An example of this is when I have noted “M11” below. This code references a specified finish on our finish legend (not shown here) and it wasn’t clear what finish they were bidding.
Here are a couple drawings that we created for bidding:
Here are a small portion of redlines that I worked through. There are three different groupings here that have elevations, sections and details:


















Leave a comment